Beschrijving

Wonen aan de Grote Waard 9 betekent rustig, groen en gemoedelijk thuiskomen!

Deze fijne woning ligt op een heerlijke plek, direct aan de speeltuin en groenvoorziening, zonder auto’s voor de deur. Een ideale combinatie van rust, vrijheid en toch alle dagelijkse voorzieningen op korte afstand. Binnen beschik je over een gezellige woonkamer met half open keuken, 2 ruime slaapkamers, een complete badkamer en een verrassend ruime zolderetage met volop mogelijkheden. Ook buiten is het genieten, met zowel een voor- als achtertuin en een stenen berging met overkapping. Zie jij jezelf hier al wonen? Wacht dan niet te lang en plan snel een bezichtiging.

Indeling

Via de voortuin bereik je de voordeur van de woning. In de hal vind je de meterkast, het toilet met fonteintje en de toegang naar de woonkamer.
Zodra je de woonkamer binnenstapt, valt direct het prettige uitzicht op. Aan de voorzijde is de zithoek gesitueerd, met een fijn zicht over het groen en de speeltuin. Dankzij het royale kozijn komt er een aangename hoeveelheid daglicht naar binnen, wat de ruimte een open en uitnodigend karakter geeft. Aan de tuinzijde bevindt zich de eethoek, in directe verbinding met de half open keuken. 
De keuken is praktisch ingedeeld en voorzien van diverse inbouwapparatuur, waaronder een vaatwasser, koelkast, fornuis en een combi oven/magnetron. Vanuit de keuken loop je zo de achtertuin in. 
Zowel voor als achter bevindt zich een elektrisch zonnescherm.

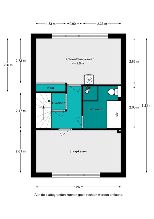
Eerste verdieping

De eerste verdieping biedt ruimte aan 2 royale slaapkamers en een uitgebreide badkamer. Beide slaapkamers hebben een prettig formaat en strekken zich uit over de volle breedte van de woning, wat zorgt voor fijne, goed indeelbare kamers.
De badkamer is lekker ruim opgezet en voorzien van een wastafel, ligbad, douche, toilet en mechanische ventilatie. Een complete ruimte waar je de dag ontspannen begint en afsluit.

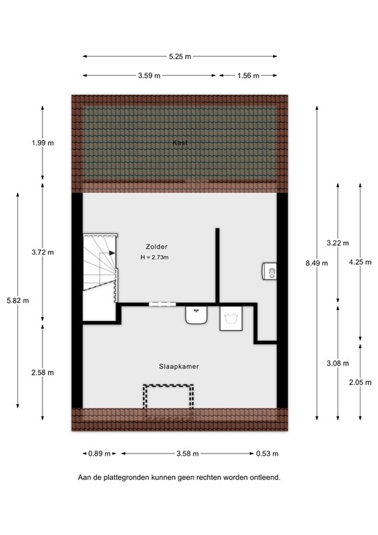
Tweede verdieping

zolderetage
Via een vaste trap bereik je de zolderverdieping. Deze etage is opgedeeld in een voorzolder en een aparte werkkamer. Uiteraard is deze kamer ook prima te gebruiken als 3e slaapkamer, hobbyruimte of fijne thuiswerkplek. Op dit moment is de ruimte in gebruik als hobbykamer en vind je hier ook de wasmachineaansluiting en een extra wastafel.
Op de voorzolder bevindt zich de cv-opstelling en achter de knieschotten is nog een zee aan bergruimte aanwezig. Ideaal voor koffers, seizoensspullen en natuurlijk de kerstdecoratie.

Tuin

De woning beschikt over zowel een voor- als achtertuin, waardoor je op elk moment van de dag wel een fijne plek in of uit de zon kunt vinden.
De voortuin is gelegen op het westen en is een heerlijke plek om te genieten van het groene uitzicht en de speeltuin voor de deur. Zie je het al voor je? Met een kop koffie in het zonnetje, terwijl de wijk op een rustige en gemoedelijke manier aan je voorbij trekt.
De achtertuin ligt op het oosten, is onderhoudsvriendelijk aangelegd en voorzien van een stenen berging met overkapping en er bevindt zich een (anti vries) buitenkraan. Een prettige buitenruimte waar je al vroeg op de dag van de zon kunt genieten. Daarnaast is de tuin ook bereikbaar via een brandgang, wat extra praktisch is.

Bijzonderheden

-	Gemoedelijke ligging aan groenvoorziening en speeltuin
-	Geen auto’s direct voor de deur
-	2 ruime slaapkamers
-	Mogelijkheid tot een 3e slaapkamer op zolder
-	Uitgebouwde badkamer
-	Half open keuken met inbouwapparatuur
-	Voor- en achtertuin
-	Stenen berging met overkapping
-	Te moderniseren naar eigen smaak en woonwensen

Toelichtingsclausule NEN2580: De Meetinstructie is gebaseerd op de NEN2580. De Meetinstructie is bedoeld om een meer eenduidige manier van meten toe te passen voor het geven van een indicatie van de gebruiksoppervlakte. De Meetinstructie sluit verschillen in meetuitkomsten niet volledig uit, door bijvoorbeeld interpretatieverschillen, afrondingen of beperkingen bij het uitvoeren van de meting.
Alle informatie is niet meer dan een uitnodiging tot het doen van een bod, derhalve kunt u aan deze gegevens geen rechten ontlenen.

Al het bovenstaande betreft informatie omtrent de verkoop van genoemd object. De informatie is met zorg samengesteld, maar voor de juistheid ervan kan door Meiboom Makelaars geen aansprakelijkheid worden aanvaard, noch aan de vermelde gegevens enig recht worden ontleend. Nadrukkelijk is vermeld dat deze informatieverstrekking niet als een aanbieding of offerte kan worden beschouwd.

Wij maken gebruik van een standaardmodel koopovereenkomst. In het kader van zekerheidstelling wordt er standaard een bankgarantie/waarborgsom van 10% en ouderdomsclausule opgenomen in de koopovereenkomst.

Kenmerken