Delen
Aanbieder
Kantoor
Makelaar
Algemeen
Wat een unieke combinatie van comfort, sfeer en duurzaamheid! Deze energiezuinige tussenwoning aan het Kijsveld 20 in Breda is de afgelopen jaren met zorg en oog voor detail gemoderniseerd. Door de jaren heen is er gedacht aan duurzaamheid; voorzien van 10 zonnepanelen (2021), spouwmuurisolatie (2021), kunststof kozijnen met HR++ glas op de begane grond en eerste etage (2023) én een vernieuwde... Meer informatie
| Kenmerken | |
|---|---|
| Alle kenmerken | |
| Type object | Woonhuis, eengezinswoning, tussenwoning |
| Bouwperiode | 1961 |
| Status | Verkocht onder voorbehoud |
| Aangeboden sinds | Donderdag 26 februari 2026 |
Kenmerken
| Overdracht | |
|---|---|
| Vraagprijs | € 425.000,- k.k. |
| Status | Verkocht onder voorbehoud |
| Aanvaarding | In overleg |
| Aangeboden sinds | Donderdag 26 februari 2026 |
| Laatste wijziging | Vrijdag 20 maart 2026 |
| Bouw | |
|---|---|
| Type object | Woonhuis, eengezinswoning, tussenwoning |
| Soort bouw | Bestaande bouw |
| Bouwperiode | 1961 |
| Dakbedekking | Dakpannen |
| Type dak | Zadeldak |
| Isolatievormen | Dakisolatie HR-glas Muurisolatie Vloerisolatie |
| Oppervlaktes en inhoud | |
|---|---|
| Perceeloppervlakte | 159 m² |
| Woonoppervlakte | 88 m² |
| Woonkameroppervlakte | 30 m² |
| Keukenoppervlakte | 5 m² |
| Inhoud | 375 m³ |
| Oppervlakte overige inpandige ruimten | 20 m² |
| Oppervlakte externe bergruimte | 8 m² |
| Oppervlakte gebouwgebonden buitenruimte | 2 m² |
| Indeling | |
|---|---|
| Aantal bouwlagen | 3 |
| Aantal kamers | 4 (waarvan 3 slaapkamers) |
| Aantal badkamers | 1 (en 1 apart toilet) |
| Locatie | |
|---|---|
| Ligging | Aan rustige weg In woonwijk |
| Tuin | |
|---|---|
| Type | Achtertuin |
| Oriëntering | Oosten |
| Heeft een achterom | Ja |
| Tuin 2 - Type | Voortuin |
| Tuin 2 - Oriëntering | West |
| Energieverbruik | |
|---|---|
| Energielabel | A |
| CV ketel | |
|---|---|
| CV ketel | Intergas |
| Warmtebron | Gas |
| Bouwjaar | 2021 |
| Combiketel | Ja |
| Eigendom | Eigendom |
| Uitrusting | |
|---|---|
| Warm water | CV-ketel |
| Verwarmingssysteem | Airconditioning Centrale verwarming Houtkachel |
| Ventilatie methode | Mechanische ventilatie Natuurlijke ventilatie |
| Keukenvoorzieningen | Inbouwapparatuur |
| Badkamervoorzieningen | Dubbele wastafel Inloopdouche Ligbad Toilet |
| Heeft airco | Ja |
| Glasvezelaansluiting aanwezig | Ja |
| Tuin aanwezig | Ja |
| Heeft schuur/berging | Ja |
| Heeft een dakraam | Ja |
| Heeft een schuifpui | Ja |
| Heeft zonwering | Ja |
| Heeft zonnepanelen | Ja |
| Heeft ventilatie | Ja |
| Kadastrale gegevens | |
|---|---|
| Kadastrale aanduiding | Breda G 3798 |
| Perceeloppervlakte | 159 m² |
| Omvang | Geheel perceel |
| Eigendomsituatie | Eigen grond |
Beschrijving
Wat een unieke combinatie van comfort, sfeer en duurzaamheid! Deze energiezuinige tussenwoning aan het Kijsveld 20 in Breda is de afgelopen jaren met zorg en oog voor detail gemoderniseerd. Door de jaren heen is er gedacht aan duurzaamheid; voorzien van 10 zonnepanelen (2021), spouwmuurisolatie (2021), kunststof kozijnen met HR++ glas op de begane grond en eerste etage (2023) én een vernieuwde meterkast (2023). Met energielabel A woon je hier niet alleen comfortabel, maar ook toekomstgericht. Ben jij klaar om hier jouw nieuwe thuis van te maken? Plan dan snel een bezichtiging!
Indeling
Je komt binnen in de hal, die toegang geeft tot het toilet, de praktische kelderkast (hier vind je de meterkast en de waterontharder), de woonkamer en de trapopgang naar boven. Zowel de hal als de keuken zijn voorzien van een nette plavuizen vloer; strak, tijdloos en onderhoudsvriendelijk.
Zodra je de woonkamer binnenstapt voel je het direct: dit huis is met liefde bewoond. De oorspronkelijke houten vloer is in ere hersteld en geeft direct warmte en karakter. De grote kozijnen zorgen voor een prachtige lichtinval, waardoor binnen en buiten subtiel in elkaar overlopen. De radiatoren hebben plek gemaakt voor een airco systeem, hot/cold en de houtkachel zorgt voor knusse winteravonden.
De keuken is in 2020 gerenoveerd en sluit perfect aan bij de rest van de woning. Modern, functioneel en compleet uitgerust met een oven, vaatwasser, inductiekookplaat met geïntegreerde afzuiging, koelkast en vriezer. Hier kook je met plezier, terwijl je in contact blijft met de eethoek en de tuin.
De trappen zijn in 2022 opgeknapt en stijlvol afgewerkt. De subtiele spotjes in de muur zorgen niet alleen voor veiligheid, maar geven ook een luxe uitstraling.
Zodra je de woonkamer binnenstapt voel je het direct: dit huis is met liefde bewoond. De oorspronkelijke houten vloer is in ere hersteld en geeft direct warmte en karakter. De grote kozijnen zorgen voor een prachtige lichtinval, waardoor binnen en buiten subtiel in elkaar overlopen. De radiatoren hebben plek gemaakt voor een airco systeem, hot/cold en de houtkachel zorgt voor knusse winteravonden.
De keuken is in 2020 gerenoveerd en sluit perfect aan bij de rest van de woning. Modern, functioneel en compleet uitgerust met een oven, vaatwasser, inductiekookplaat met geïntegreerde afzuiging, koelkast en vriezer. Hier kook je met plezier, terwijl je in contact blijft met de eethoek en de tuin.
De trappen zijn in 2022 opgeknapt en stijlvol afgewerkt. De subtiele spotjes in de muur zorgen niet alleen voor veiligheid, maar geven ook een luxe uitstraling.
Eerste verdieping
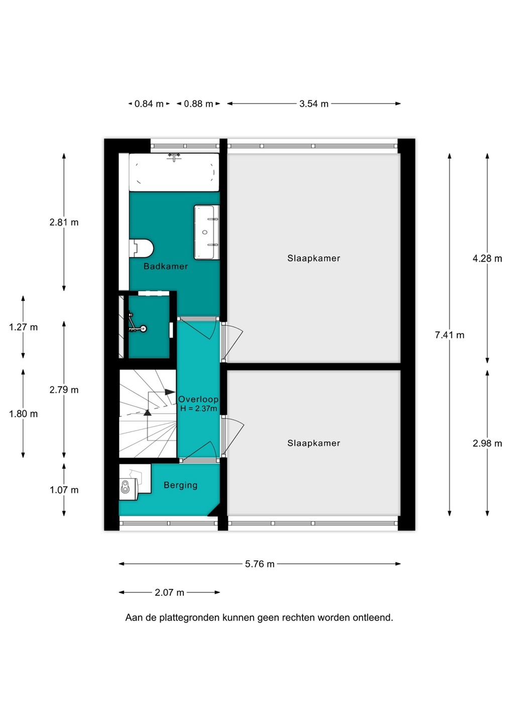
Op de eerste etage ligt een nette laminaatvloer en is alles strak afgewerkt. Hier vind je twee fijne slaapkamers en een aparte wasruimte, ideaal en praktisch ingedeeld.
De badkamer uit 2022 is werkelijk een plaatje. Modern en compleet ingericht met een ligbad, inloopdouche, dubbele wastafelmeubel, toilet en elektrische radiator. Een ruimte waar je de dag ontspannen begint en afsluit.
De badkamer uit 2022 is werkelijk een plaatje. Modern en compleet ingericht met een ligbad, inloopdouche, dubbele wastafelmeubel, toilet en elektrische radiator. Een ruimte waar je de dag ontspannen begint en afsluit.
Tweede verdieping
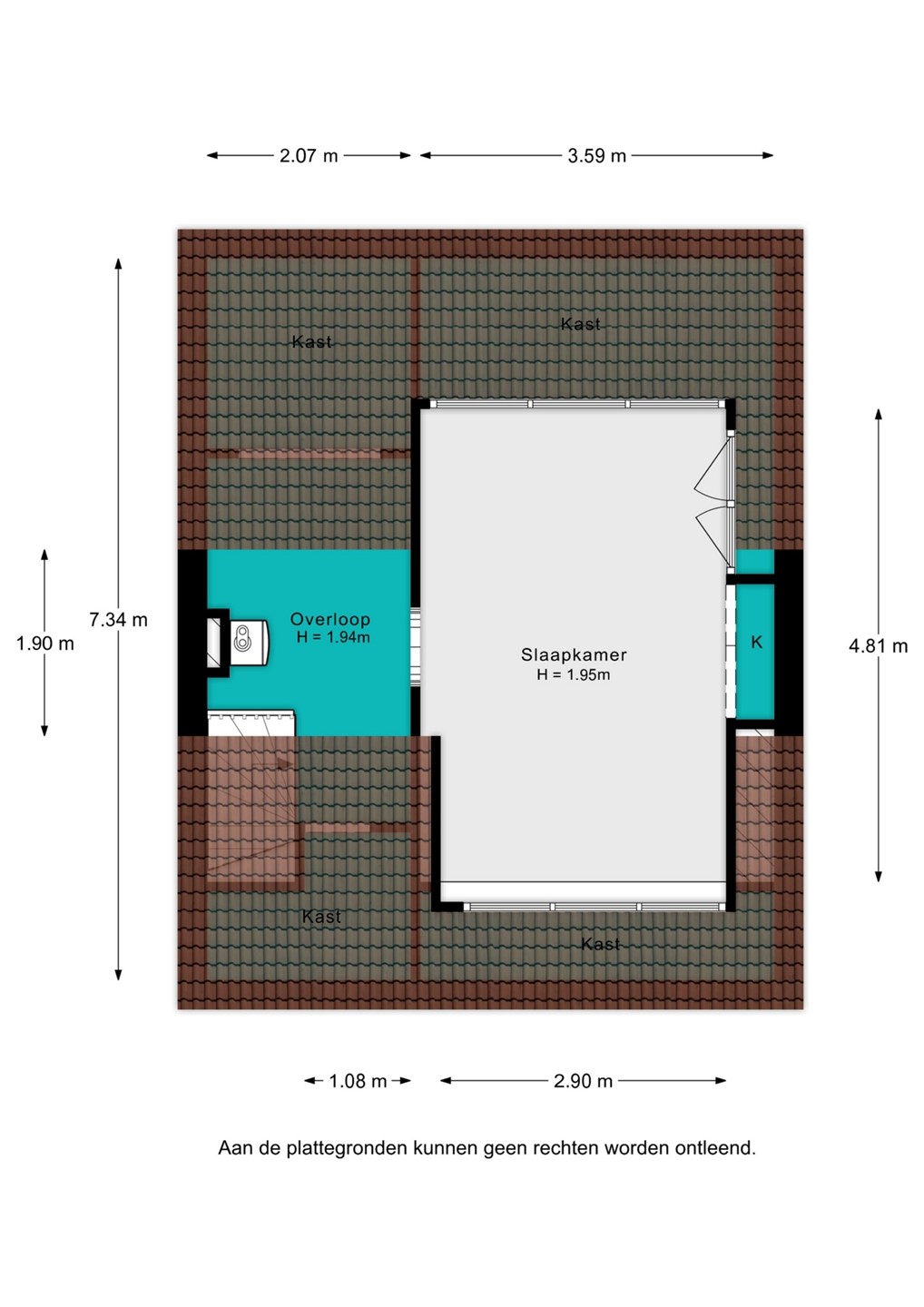
Via een vaste trap bereik je de zolder. Op de voorzolder staat de cv-ketel uit 2020 opgesteld. Daarnaast is hier volop ruimte om een extra slaapkamer, werkruimte of hobbykamer te realiseren. Een waardevolle toevoeging dus!
Tuin
De schuifpui aan de achterzijde zorgt voor een prachtig geheel met de tuin. Op zonnige dagen zet je de deuren open en geniet je van het buitenleven.
De tuin is gelegen op het oosten, waardoor je hier heerlijk van de ochtend- en middagzon geniet. Het groen, de kleine vijver en de beplanting zorgen voor een ontspannen sfeer. Een plek waar je tot rust komt na een lange dag. Achterin vind je een stenen berging met elektra en er is een handige achterom aanwezig. Daarnaast beschikt de woning over een zonnescherm aan de achterzijde en een elektrisch verduisterend zonnescherm aan de voorzijde.
De tuin is gelegen op het oosten, waardoor je hier heerlijk van de ochtend- en middagzon geniet. Het groen, de kleine vijver en de beplanting zorgen voor een ontspannen sfeer. Een plek waar je tot rust komt na een lange dag. Achterin vind je een stenen berging met elektra en er is een handige achterom aanwezig. Daarnaast beschikt de woning over een zonnescherm aan de achterzijde en een elektrisch verduisterend zonnescherm aan de voorzijde.
Bijzonderheden
- Energielabel A
- Deels gerenoveerd in 2020
- Kunststof kozijnen met HR++ glas (2023) begane grond en eerste etage
- Spouwmuurisolatie (2021)
- 10 Zonnepanelen (2021)
- Meterkast vernieuwd (2023)
- Badkamer vernieuwd (2022)
- Parkeervergunning: Eerste gratis, tweede €100,- per jaar
Omgeving & voorzieningen
De woning is gelegen in een prettige woonomgeving in Breda met diverse voorzieningen in de nabije omgeving. Denk aan winkels, scholen en sportfaciliteiten. Ook de bereikbaarheid is goed, met uitvalswegen en openbaar vervoer op korte afstand. Hier woon je rustig, maar toch dichtbij alles wat je nodig hebt.
Kortom, een sfeervolle, energiezuinige woning waar je zó in kunt trekken. Kom je de sfeer zelf ervaren? Je bent van harte welkom!
Toelichtingsclausule NEN2580: De Meetinstructie is gebaseerd op de NEN2580. De Meetinstructie is bedoeld om een meer eenduidige manier van meten toe te passen voor het geven van een indicatie van de gebruiksoppervlakte. De Meetinstructie sluit verschillen in meetuitkomsten niet volledig uit, door bijvoorbeeld interpretatieverschillen, afrondingen of beperkingen bij het uitvoeren van de meting.
Alle informatie is niet meer dan een uitnodiging tot het doen van een bod, derhalve kunt u aan deze gegevens geen rechten ontlenen.
Al het bovenstaande betreft informatie omtrent de verkoop van genoemd object. De informatie is met zorg samengesteld, maar voor de juistheid ervan kan door Meiboom Makelaars geen aansprakelijkheid worden aanvaard, noch aan de vermelde gegevens enig recht worden ontleend. Nadrukkelijk is vermeld dat deze informatieverstrekking niet als een aanbieding of offerte kan worden beschouwd.
Wij maken gebruik van een standaardmodel koopovereenkomst. In het kader van zekerheidstelling wordt er standaard een bankgarantie/waarborgsom van 10% en ouderdomsclausule opgenomen in de koopovereenkomst.
- Deels gerenoveerd in 2020
- Kunststof kozijnen met HR++ glas (2023) begane grond en eerste etage
- Spouwmuurisolatie (2021)
- 10 Zonnepanelen (2021)
- Meterkast vernieuwd (2023)
- Badkamer vernieuwd (2022)
- Parkeervergunning: Eerste gratis, tweede €100,- per jaar
Omgeving & voorzieningen
De woning is gelegen in een prettige woonomgeving in Breda met diverse voorzieningen in de nabije omgeving. Denk aan winkels, scholen en sportfaciliteiten. Ook de bereikbaarheid is goed, met uitvalswegen en openbaar vervoer op korte afstand. Hier woon je rustig, maar toch dichtbij alles wat je nodig hebt.
Kortom, een sfeervolle, energiezuinige woning waar je zó in kunt trekken. Kom je de sfeer zelf ervaren? Je bent van harte welkom!
Toelichtingsclausule NEN2580: De Meetinstructie is gebaseerd op de NEN2580. De Meetinstructie is bedoeld om een meer eenduidige manier van meten toe te passen voor het geven van een indicatie van de gebruiksoppervlakte. De Meetinstructie sluit verschillen in meetuitkomsten niet volledig uit, door bijvoorbeeld interpretatieverschillen, afrondingen of beperkingen bij het uitvoeren van de meting.
Alle informatie is niet meer dan een uitnodiging tot het doen van een bod, derhalve kunt u aan deze gegevens geen rechten ontlenen.
Al het bovenstaande betreft informatie omtrent de verkoop van genoemd object. De informatie is met zorg samengesteld, maar voor de juistheid ervan kan door Meiboom Makelaars geen aansprakelijkheid worden aanvaard, noch aan de vermelde gegevens enig recht worden ontleend. Nadrukkelijk is vermeld dat deze informatieverstrekking niet als een aanbieding of offerte kan worden beschouwd.
Wij maken gebruik van een standaardmodel koopovereenkomst. In het kader van zekerheidstelling wordt er standaard een bankgarantie/waarborgsom van 10% en ouderdomsclausule opgenomen in de koopovereenkomst.