Delen
Aanbieder
Kantoor
Makelaar
Algemeen
Karaktervol wonen met uitzicht op de haven
Wat een verrassing aan de dijk! Deze charmante twee-onder-een-kap dijkwoning aan de Steenweg 109 is met veel gevoel voor stijl en respect voor het verleden compleet gerenoveerd in 2024 en 2025. Het resultaat? Een speelse, comfortabele woning met energielabel A, moderne techniek én karaktervolle details zoals een terrazzo vloer en houten kozijnen. Vanu... Meer informatie
Wat een verrassing aan de dijk! Deze charmante twee-onder-een-kap dijkwoning aan de Steenweg 109 is met veel gevoel voor stijl en respect voor het verleden compleet gerenoveerd in 2024 en 2025. Het resultaat? Een speelse, comfortabele woning met energielabel A, moderne techniek én karaktervolle details zoals een terrazzo vloer en houten kozijnen. Vanu... Meer informatie
| Kenmerken | |
|---|---|
| Alle kenmerken | |
| Type object | Woonhuis, eengezinswoning, twee onder een kap woning, dijkwoning |
| Bouwperiode | 1950 |
| Status | Nieuw in verkoop |
| Aangeboden sinds | Maandag 10 november 2025 |
Kenmerken
| Overdracht | |
|---|---|
| Vraagprijs | € 425.000,- k.k. |
| Status | Nieuw in verkoop |
| Aanvaarding | In overleg |
| Aangeboden sinds | Maandag 10 november 2025 |
| Bouw | |
|---|---|
| Type object | Woonhuis, eengezinswoning, twee onder een kap woning, dijkwoning |
| Soort bouw | Bestaande bouw |
| Bouwperiode | 1950 |
| Dakbedekking | Dakpannen |
| Type dak | Zadeldak |
| Isolatievormen | Grotendeels dubbel glas HR-glas Spouwmuren Vloerisolatie |
| Oppervlaktes en inhoud | |
|---|---|
| Perceeloppervlakte | 162 m² |
| Woonoppervlakte | 91 m² |
| Inhoud | 491 m³ |
| Oppervlakte overige inpandige ruimten | 47 m² |
| Oppervlakte gebouwgebonden buitenruimte | 39 m² |
| Indeling | |
|---|---|
| Aantal bouwlagen | 3 (en 1 kelder) |
| Aantal kamers | 3 (waarvan 2 slaapkamers) |
| Aantal badkamers | 1 (en 2 aparte toiletten) |
| Tuin | |
|---|---|
| Type | Achtertuin |
| Hoofdtuin | Ja |
| Oriëntering | Zuidoost |
| Heeft een achterom | Ja |
| Energieverbruik | |
|---|---|
| Energielabel | A |
| CV ketel | |
|---|---|
| CV ketel | Remeha |
| Warmtebron | Gas |
| Bouwjaar | 2022 |
| Combiketel | Ja |
| Eigendom | Eigendom |
| Uitrusting | |
|---|---|
| Warm water | CV-ketel |
| Verwarmingssysteem | Centrale verwarming Vloerverwarming (gedeeltelijk) Warmtepomp |
| Ventilatie methode | Mechanische ventilatie Natuurlijke ventilatie |
| Badkamervoorzieningen | Dubbele wastafel Inloopdouche Toilet Vloerverwarming |
| Heeft een balkon | Ja |
| Glasvezelaansluiting aanwezig | Ja |
| Tuin aanwezig | Ja |
| Heeft een dakraam | Ja |
| Heeft zonnepanelen | Ja |
| Heeft ventilatie | Ja |
| Kadastrale gegevens | |
|---|---|
| Kadastrale aanduiding | Zevenbergen O 1367 |
| Perceeloppervlakte | 7 m² |
| Omvang | Geheel perceel |
| Eigendomsituatie | Eigen grond |
| Kadastrale aanduiding | Klundert D 1225 |
| Perceeloppervlakte | 52 m² |
| Omvang | Geheel perceel |
| Eigendomsituatie | Eigen grond |
| Kadastrale aanduiding | Klundert D 1224 |
| Perceeloppervlakte | 3 m² |
| Omvang | Geheel perceel |
| Eigendomsituatie | Eigen grond |
| Kadastrale aanduiding | Zevenbergen O 1293 |
| Perceeloppervlakte | 100 m² |
| Omvang | Geheel perceel |
| Eigendomsituatie | Eigen grond |
Beschrijving
Karaktervol wonen met uitzicht op de haven
Wat een verrassing aan de dijk! Deze charmante twee-onder-een-kap dijkwoning aan de Steenweg 109 is met veel gevoel voor stijl en respect voor het verleden compleet gerenoveerd in 2024 en 2025. Het resultaat? Een speelse, comfortabele woning met energielabel A, moderne techniek én karaktervolle details zoals een terrazzo vloer en houten kozijnen. Vanuit de slaapkamer kijk je zó uit over de haven van Moerdijk.
Deze woning biedt een unieke combinatie van sfeer, duurzaamheid en functionaliteit. Denk aan 18 zonnepanelen, een hybride warmtepomp, een heerlijke tuin én een verrassend ruim onderhuis met hobbyruimte. Nieuwsgierig? Kom snel kijken en laat je verrassen door de speelse indeling en het wooncomfort van deze unieke dijkwoning!
Wat een verrassing aan de dijk! Deze charmante twee-onder-een-kap dijkwoning aan de Steenweg 109 is met veel gevoel voor stijl en respect voor het verleden compleet gerenoveerd in 2024 en 2025. Het resultaat? Een speelse, comfortabele woning met energielabel A, moderne techniek én karaktervolle details zoals een terrazzo vloer en houten kozijnen. Vanuit de slaapkamer kijk je zó uit over de haven van Moerdijk.
Deze woning biedt een unieke combinatie van sfeer, duurzaamheid en functionaliteit. Denk aan 18 zonnepanelen, een hybride warmtepomp, een heerlijke tuin én een verrassend ruim onderhuis met hobbyruimte. Nieuwsgierig? Kom snel kijken en laat je verrassen door de speelse indeling en het wooncomfort van deze unieke dijkwoning!
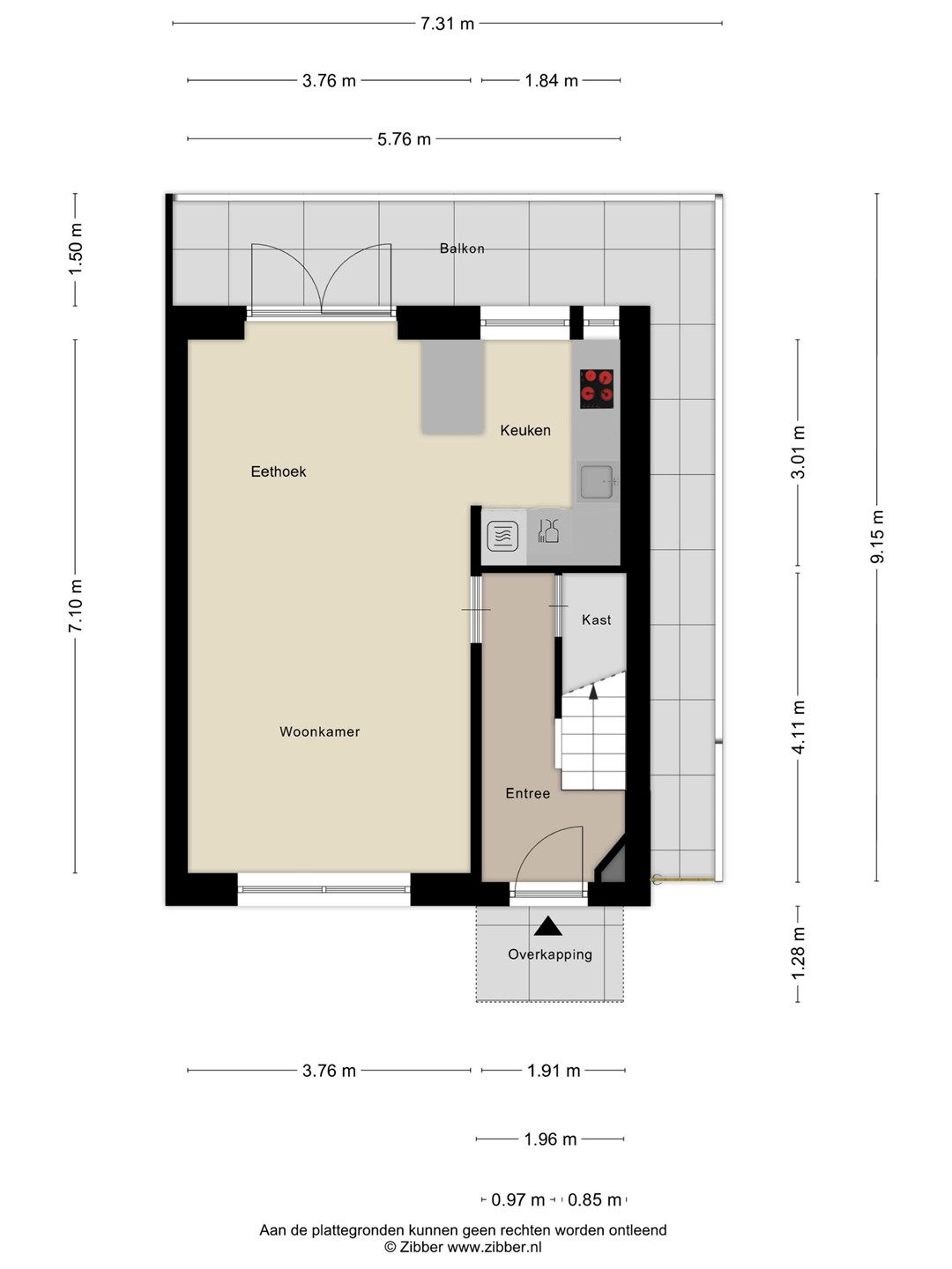
Indeling
Je stapt binnen via de sfeervolle entree met een originele Italiaanse terrazzo vloer een echte blikvanger. Vanuit de hal loop je de lichte woonkamer binnen, waar direct de grote ramen met uitzicht over de dijk opvallen. De ruimte is afgewerkt met een warme houtlook PVC-vloer, voorzien van vloerverwarming.
Aan de achterzijde vind je de eetkamer en de open keuken, met directe toegang tot het balkon dat half om de woning heen ligt. Vanaf hier voelt het alsof je uitkijkt over je eigen groene domein en tevens een heerlijke plek voor een kop koffie in de ochtendzon.
De keuken is compleet uitgerust met een 4-pits inductiekookplaat, afzuigkap, koelkast, vaatwasser en combi-oven. Alles binnen handbereik en netjes weggewerkt in een eigentijds ontwerp.
Aan de achterzijde vind je de eetkamer en de open keuken, met directe toegang tot het balkon dat half om de woning heen ligt. Vanaf hier voelt het alsof je uitkijkt over je eigen groene domein en tevens een heerlijke plek voor een kop koffie in de ochtendzon.
De keuken is compleet uitgerust met een 4-pits inductiekookplaat, afzuigkap, koelkast, vaatwasser en combi-oven. Alles binnen handbereik en netjes weggewerkt in een eigentijds ontwerp.
Eerste verdieping
De trap naar boven is op zichzelf al een pronkstuk, met een speels accent dankzij de met leer afgewerkte wand. Eenmaal boven valt de hoogte direct op: een heerlijk ruimtelijk gevoel.
Vanaf de overloop heb je toegang tot twee slaapkamers en een apart toilet – met wederom ook hier stijlvolle terrazzo tegels, een mooi fonteintje en speelse wandtegeltjes.
De (werk)kamer aan de voorzijde kijkt uit over de haven en is net als de rest van de verdieping, voorzien van een klassieke houten vloer. Via deze kamer of overloop bereik je de tweede, royale slaapkamer aan de achterzijde. Hier waan je je in een boutique hotel, zeker met de luxe ensuite badkamer, voorzien van inloopdouche, dubbele wastafel en tweede toilet, uitgevoerd in warme tinten en hoogwaardige materialen.
Vanaf de overloop heb je toegang tot twee slaapkamers en een apart toilet – met wederom ook hier stijlvolle terrazzo tegels, een mooi fonteintje en speelse wandtegeltjes.
De (werk)kamer aan de voorzijde kijkt uit over de haven en is net als de rest van de verdieping, voorzien van een klassieke houten vloer. Via deze kamer of overloop bereik je de tweede, royale slaapkamer aan de achterzijde. Hier waan je je in een boutique hotel, zeker met de luxe ensuite badkamer, voorzien van inloopdouche, dubbele wastafel en tweede toilet, uitgevoerd in warme tinten en hoogwaardige materialen.
Overige verdiepingen
Via een losse trap bereik je de vliering boven de slaapkamers. Een praktische ruimte voor opslag, met tevens de omvormer voor de 18 zonnepanelen.
Onderhuis
Zoals het hoort bij een echte dijkwoning heeft ook Steenweg 109 een volwaardig onderhuis. Je bereikt deze verdieping via de trap in de hal, waarna je uitkomt in een centrale hal met toegang tot meerdere ruimtes.
De technische ruimte herbergt de vernieuwde meterkast (12 groepen, 3 aardlekschakelaars), de cv-ketel (2022) én de hybride warmtepomp (2024). Er is een derde toilet aanwezig en een royale hobbyruimte, ideaal voor klussen, creatieve projecten of zelfs met kleine aanpassingen een praktijk aan huis.
Tot slot is er een betegelde wasruimte met aansluiting voor wasmachine en droger, werkbank en directe toegang tot de tuin – ideaal na een middagje tuinieren.
Onderhuis
Zoals het hoort bij een echte dijkwoning heeft ook Steenweg 109 een volwaardig onderhuis. Je bereikt deze verdieping via de trap in de hal, waarna je uitkomt in een centrale hal met toegang tot meerdere ruimtes.
De technische ruimte herbergt de vernieuwde meterkast (12 groepen, 3 aardlekschakelaars), de cv-ketel (2022) én de hybride warmtepomp (2024). Er is een derde toilet aanwezig en een royale hobbyruimte, ideaal voor klussen, creatieve projecten of zelfs met kleine aanpassingen een praktijk aan huis.
Tot slot is er een betegelde wasruimte met aansluiting voor wasmachine en droger, werkbank en directe toegang tot de tuin – ideaal na een middagje tuinieren.
Tuin
De tuin is recent opnieuw aangelegd en bestaat uit drie speels aangelegde levels. Verschillende terrassen, siergrassen en tegelpatronen zorgen voor een gevarieerd en sfeervol geheel. Hier zit je altijd goed – of je nu van zon of schaduw houdt, van tuinieren of gewoon van genieten.
De zijgevel van de woning is in 2024 opnieuw gevoegd en geïmpregneerd, wat de uitstraling van het huis ten goede komt én het onderhoud beperkt.
De zijgevel van de woning is in 2024 opnieuw gevoegd en geïmpregneerd, wat de uitstraling van het huis ten goede komt én het onderhoud beperkt.
Bijzonderheden
• Energielabel A
• Instapklaar en compleet gerenoveerd (2024-2025)
• Hybride warmtepomp (2024)
• 18 zonnepanelen
• Grotendeels nieuwe houten kozijnen met HR++ glas
• Luxe badkamer ensuite
• Royale tuin met verschillende niveaus
• Speelse indeling met veel karakter
• Hobbyruimte of praktijk aan huis
• Voldoende parkeergelegenheid in de straat
• Complete verlichting Philips Hue
Moerdijk: Moerdijk is één van de dorpen in gemeente Moerdijk. De kalmte en groenvoorzieningen die het dorp biedt zijn ideaal voor mensen die gemoedelijk willen wonen. De basisschool is te vinden in het midden van het dorp en is dan ook vaak de aanstichter voor leuke activiteiten voor de kinderen. Ook zal u verbazen hoe het verenigingsleven u verwelkomt met passie en hart voor het dorp. Zo staat de (jeugd) toneelvereniging elk jaar op de planken in de Ankerkuil, zijn er tennisbanen, een voetbalvereniging en een biljartvereniging. Houdt u van saamhorigheid en de handen uit de mouwen steken dan zijn de stichting de Zonnebloem en het oranje comité altijd druk in de week. Als u toch liever behulpzaam wilt zijn op ander vlak dan is misschien de vrijwillige brandweer wel iets voor u! Lekker wandelen of genieten kan op het strandje ‘de Appelzak’ of wandelgebied ‘Appelzak-Zuid’ Uiteraard is het geen verrassing dat dit gezellige dorpje op korte afstand is gelegen van Port of Moerdijk wat voor veel werkgelegenheid zorgt. Daarbij zit in u binnen 5 minuten op de uitvalswegen A16 en A17. Goed om te weten: Moerdijk biedt de ‘Moerdijkregeling.’ Dit geeft huiseigenaren de zekerheid dat ze hun huis kunnen verkopen tegen 95% van een bepaalde taxatiewaarde.
Toelichtingsclausule NEN2580: De Meetinstructie is gebaseerd op de NEN2580. De Meetinstructie is bedoeld om een meer eenduidige manier van meten toe te passen voor het geven van een indicatie van de gebruiksoppervlakte. De Meetinstructie sluit verschillen in meetuitkomsten niet volledig uit, door bijvoorbeeld interpretatieverschillen, afrondingen of beperkingen bij het uitvoeren van de meting. Alle informatie is niet meer dan een uitnodiging tot het doen van een bod, derhalve kunt u aan deze gegevens geen rechten ontlenen. Al het bovenstaande betreft informatie omtrent de verkoop van genoemd object. De informatie is met zorg samengesteld, maar voor de juistheid ervan kan door Meiboom Makelaars geen aansprakelijkheid worden aanvaard, noch aan de vermelde gegevens enig recht worden ontleend. Nadrukkelijk is vermeld dat deze informatieverstrekking niet als een aanbieding of offerte kan worden beschouwd. Wij maken gebruik van een standaardmodel koopovereenkomst. In het kader van zekerheidstelling wordt er standaard een bankgarantie/waarborgsom van 10% en een ouderdomsclausule opgenomen in de koopovereenkomst.
• Instapklaar en compleet gerenoveerd (2024-2025)
• Hybride warmtepomp (2024)
• 18 zonnepanelen
• Grotendeels nieuwe houten kozijnen met HR++ glas
• Luxe badkamer ensuite
• Royale tuin met verschillende niveaus
• Speelse indeling met veel karakter
• Hobbyruimte of praktijk aan huis
• Voldoende parkeergelegenheid in de straat
• Complete verlichting Philips Hue
Moerdijk: Moerdijk is één van de dorpen in gemeente Moerdijk. De kalmte en groenvoorzieningen die het dorp biedt zijn ideaal voor mensen die gemoedelijk willen wonen. De basisschool is te vinden in het midden van het dorp en is dan ook vaak de aanstichter voor leuke activiteiten voor de kinderen. Ook zal u verbazen hoe het verenigingsleven u verwelkomt met passie en hart voor het dorp. Zo staat de (jeugd) toneelvereniging elk jaar op de planken in de Ankerkuil, zijn er tennisbanen, een voetbalvereniging en een biljartvereniging. Houdt u van saamhorigheid en de handen uit de mouwen steken dan zijn de stichting de Zonnebloem en het oranje comité altijd druk in de week. Als u toch liever behulpzaam wilt zijn op ander vlak dan is misschien de vrijwillige brandweer wel iets voor u! Lekker wandelen of genieten kan op het strandje ‘de Appelzak’ of wandelgebied ‘Appelzak-Zuid’ Uiteraard is het geen verrassing dat dit gezellige dorpje op korte afstand is gelegen van Port of Moerdijk wat voor veel werkgelegenheid zorgt. Daarbij zit in u binnen 5 minuten op de uitvalswegen A16 en A17. Goed om te weten: Moerdijk biedt de ‘Moerdijkregeling.’ Dit geeft huiseigenaren de zekerheid dat ze hun huis kunnen verkopen tegen 95% van een bepaalde taxatiewaarde.
Toelichtingsclausule NEN2580: De Meetinstructie is gebaseerd op de NEN2580. De Meetinstructie is bedoeld om een meer eenduidige manier van meten toe te passen voor het geven van een indicatie van de gebruiksoppervlakte. De Meetinstructie sluit verschillen in meetuitkomsten niet volledig uit, door bijvoorbeeld interpretatieverschillen, afrondingen of beperkingen bij het uitvoeren van de meting. Alle informatie is niet meer dan een uitnodiging tot het doen van een bod, derhalve kunt u aan deze gegevens geen rechten ontlenen. Al het bovenstaande betreft informatie omtrent de verkoop van genoemd object. De informatie is met zorg samengesteld, maar voor de juistheid ervan kan door Meiboom Makelaars geen aansprakelijkheid worden aanvaard, noch aan de vermelde gegevens enig recht worden ontleend. Nadrukkelijk is vermeld dat deze informatieverstrekking niet als een aanbieding of offerte kan worden beschouwd. Wij maken gebruik van een standaardmodel koopovereenkomst. In het kader van zekerheidstelling wordt er standaard een bankgarantie/waarborgsom van 10% en een ouderdomsclausule opgenomen in de koopovereenkomst.